


Viel Platz für unser Wohnuniversum. Ein Haus der Kontraste. Heller Putz im Wechsel mit einer Holzverschalung an der Fassade lässt die Idee schon von Weitem erkennen. Eine gegliederte Außenhaut mit asymmetrisch ausgerücktem Anbau gibt dem Haus seine charakteristische kantige Kontur.


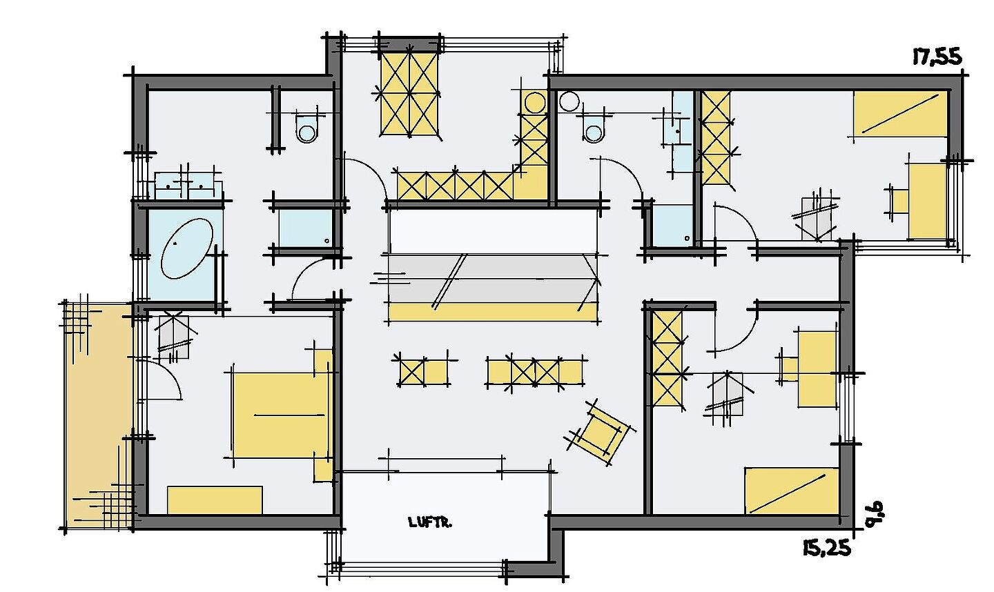
Interessante Bodentexturen von hell bis dunkel aus den Materialien Parkett und Stein strukturieren die Räume nach den jeweiligen Verwendungskonzepten: Wohnen, Essen, Kochen. Alles in einem Raum, doch darin in jeweils zugeteilten, gedachten Unterräumen. Im transparenten Erdgeschoss findet unser Leben auf verschiedenen Ebenen statt, sodass man zur Kuschelecke regelrecht herabsteigt. Diese Raumaufteilung gliedert und verleiht durch unterschiedliche Raumhöhen Spannung. Kurzum: Die ZimmerMeisterHaus®-Manufaktur hat unsere Erwartungen weit übertroffen.
Eine CO2-neutrale Holzpelletheizung spendet angenehme Wärme und sorgt für echtes Wohlfühlklima. Dazu haben wir eine Solaranlage installieren lassen, deren Wasserkollektoren unser Brauchwasser erwärmen. Und als i-Tüpfelchen wählten wir eine Lüftungsanlage aus, die die Zuluft über einen Erdkollektor vorwärmt und die Restwärme der Abluft wieder in den Heizkreislauf zurückführt.
Sie möchten mehr zu diesem Objekt erfahren?
Gerne führen wir Sie zu den Inhalten auf unserer Website, die am besten zu Ihrem Bauvorhaben passen.
Mein Bauvorhaben