


Der langgezogene, zweigeschossige Baukörper, die kleinteiligen Sprossenfenster und ein flaches Satteldach mit breitem Überstand erinnern noch an bayerische Bautradition. Der kräftige Rot-Weiß-Kontrast und außenliegende Edelstahl-Schornsteine geben dem Haus eine moderne, frische Note.


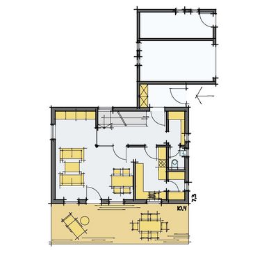
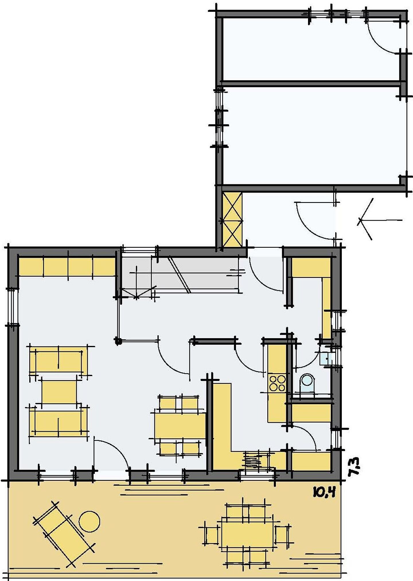
Innen bietet es seinen Bewohnern ein großzügiges Wohnambiente mit viel Transparenz: Die Trennwände zwischen Treppenhaus und Wohnräumen sind verglast, den Zugang zur Küche bildet eine Schiebetür - ein offener Durchgang also, der bei Bedarf geschlossen werden kann. Naturholz-Töne und weiße Putzflächen geben in den über Eck gegliederten Wohnräumen den Ton an. Eine der Wände leuchtet in kräftigem Rot.
Ins Obergeschoss gelangen die Bewohner über eine bequeme geradläufige Treppe. Oben stehen ihnen drei Zimmer zur Verfügung, in denen es dank der firstoffenen Bauweise hell und luftig zugeht.
Das Haus besteht aus einer Holzrahmenkonstruktion, bei der die innenseitige Installationsebene und die zusätzliche Dämmebene auf der Außenseite mit Holzweichfaserplatten gedämmt sind. Die Fassade hat eine mit kräftigem Rot gestrichene Fichtenschalung. In den Fensterbereichen im Obergeschoss und im Eingangsbereich wurden transparent behandelte Lärche-Dreischichtplatten eingesetzt. Lärche ist auch der Lieferant für die geriffelten Terrassendielen. Innen ist die naturbelassene Holzbalkendecke ebenso sichtbar wie der Sichtdachstuhl in den firstoffenen Räumen des Dachgeschosses. Als zentrale Haustechnik-Anlage dient ein Tieftemperatur-Heizkessel mit Öl-Gebläsebrenner und 160 Liter fassendem Brauchwasserspeicher. Der zusätzliche Schwedenofen im Wohnzimmer wurde am außenliegenden Edelstahlkamin angeschlossen.
Sie möchten mehr zu diesem Objekt erfahren?
Gerne führen wir Sie zu den Inhalten auf unserer Website, die am besten zu Ihrem Bauvorhaben passen.
Mein Bauvorhaben